パデシオン桃山南

10.5万円 管理/共益費 -

京都府京都市伏見区桃山町大島96

京阪宇治線「木幡」駅徒歩10分

京阪宇治線「桃山南口」駅徒歩10分

奈良線「木幡」駅徒歩14分

価格
10.5万円 管理/共益費 -
間取り/面積
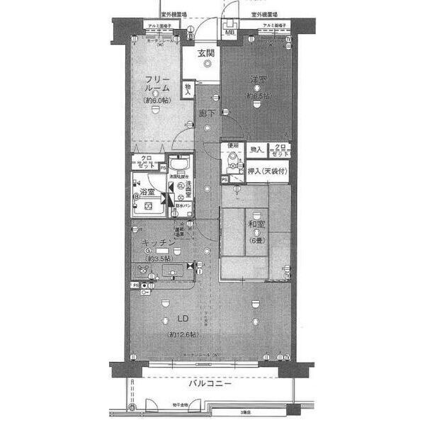
3LDK/74.14㎡
所在地
京都府京都市伏見区桃山町大島96
築年
2000年10月(築25年)
駐車
空無
交通

京阪宇治線木幡」駅 徒歩10分

京阪宇治線桃山南口」駅 徒歩10分

奈良線木幡」駅 徒歩14分

パデシオン桃山南の基本情報

物件名
パデシオン桃山南
価格
10.5万円
管理/共益費
-
築年月
2000年10月(築25年)
総戸数
130戸
所在地
京都府京都市伏見区桃山町大島96
交通

京阪宇治線木幡」駅 徒歩10分

京阪宇治線桃山南口」駅 徒歩10分

奈良線木幡」駅 徒歩14分

パデシオン桃山南の詳細情報

設備条件
  • エレベーター
  • 駐輪場
  • インターネット対応
  • オートロック
  • 宅配ボックス
設備(その他)
    -
駐車場/月額
空無/ 150m
用途地域
-
戸数
130戸 / -
取引態様
仲介
備考
多くの方からご好評頂いているパデシオン桃山南のご紹介です。駐車場まで150mの物件、いかがでしょうか。駅から徒歩10分にある物件なので、電車利用が多い方にオススメです。こちらの物件にはエレベーターがあります。当社スタッフが地域の賃貸情報をご提供いたします。お客様のこだわりやご要望などございましたら、お気軽に当社へお問い合わせ下さい。

パデシオン桃山南のコメント(おすすめポイント)

パデシオン桃山南の詳しい情報。2駅利用可能でアクセスの良い物件です。朝に慌てることなく行動するために駅から徒歩10分の駅近物件はいかがでしょうか。こちらの物件はマンションです。当社スタッフが地域の賃貸情報をご提供いたします。お客様のこだわりやご要望などございましたら、お気軽に当社へお問い合わせ下さい。

パデシオン桃山南で募集中の物件

  1. 310

    22.42坪 (74.14㎡)

    10.5万円(4683.32円/坪)

周辺施設

  • 京都市立桃山小学校の画像

    小学校

    京都市立桃山小学校

    1894m(24分)

  • 京都市立桃山中学校の画像

    中学校

    京都市立桃山中学校

    3297m(42分)

近隣の物件

  1. 京都市伏見区深草大亀谷大山町

    1DK (25.00㎡)

    4万円

  2. 京都市伏見区竹田藁屋町

    1K (31.02㎡)

    5.8万円

  3. 京都市伏見区桃山町泰長老

    3LDK (68.67㎡)

    14万円

  4. 京都市伏見区中島河原田町

    3LDK (71.00㎡)

    9.5万円

パデシオン桃山南

お気軽にお問い合わせください

LINEからお問い合わせ 無料お問い合わせ

株式会社アズライフ 京都賃貸住宅サービス

075-823-6170

9:00-19:00

(休:水曜日)